Choose Check-In and Check-Out dateWho is coming?
Check in Check out
Guests
Gaustatoppen Lodge K303
Select an option
Gaustatoppen Lodge K303 is not available with your search criteria.Description
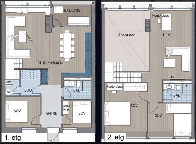
This spacious 136 sqm apartment features 4 comfortable bedrooms, accommodating up to 9 guests, an open living/kitchen area, an additional TV room, and a grand view of Gaustatoppen. You will also have access to two modern bathrooms and a charming balcony where you can bask in the sun and admire the ...
Amenities
Capacity
Square Meters: 136
Number of bedrooms: 4
Number of beds: 9
Number of WC: 2
Number of showers: 2
Good to know
EV-charger
Ski in/ Ski out (alpine)
Pets Not Allowed
Departure Cleaning Included
Bedlinen & towels included
Non smoking
Facilities
Garage parking - free
Fireplace
Microwave
TV Screen
Free Wi-Fi
Washing machine
Balcony/terrace
Location
Skipsfjellvegen 243
Policies
General Order Terms and ConditionsLast updated: 2022-01-24GENERAL TERMS AND CONDITIONS Our terms regarding orders, payment, amendments, cancellations, insurance, rights, obligations, reservations, and privacy. These general terms and conditions apply to goods and services purchased from Gausta Ski & ...














































